Oaklands Grove, London

Under Offer £2,100 PCM

2 1 1
*Offers in Excess of £2100pcm*

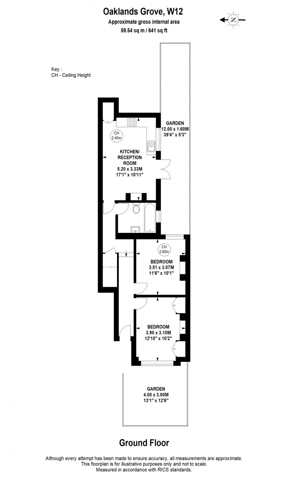
A beautifully presented two-bedroom garden flat located on the sought-after Oaklands Grove, W12. This charming property benefits from its own private entrance and offers well-balanced accommodation throughout.

To the front is a spacious principal bedroom featuring built-in storage and a large window providing excellent natural light. There is a second double bedroom, ideal for guests or a home office, and a contemporary bathroom with a shower over the bath.

The open-plan kitchen and living area is designed for modern living, with ample space for both dining and relaxation. French doors lead directly onto a low-maintenance private garden, perfect for entertaining or enjoying the outdoors.

Oaklands Grove is a peaceful residential street situated close to the amenities of Shepherd’s Bush and Askew Village. Excellent transport links are within easy reach, including Shepherd’s Bush Market (Hammersmith & City and Circle lines), Shepherd’s Bush (Central line and Overground), and numerous local bus routes providing quick access to Hammersmith, Notting Hill, and Central London. The nearby Westfield Shopping Centre offers an array of shops, restaurants, and leisure facilities.
  • 2 Double Bedrooms
  • Open Plan Kitchen Living Room
  • Private Garden
  • Ground Floor
  • Private Entrance
  • Professionally Managed
Floorplan for London
EPC Graph for London
Similar Properties

Book a Valuation

Find out how much your property is worth