Davis Road, London

Let £2,300 PCM

2 1 2
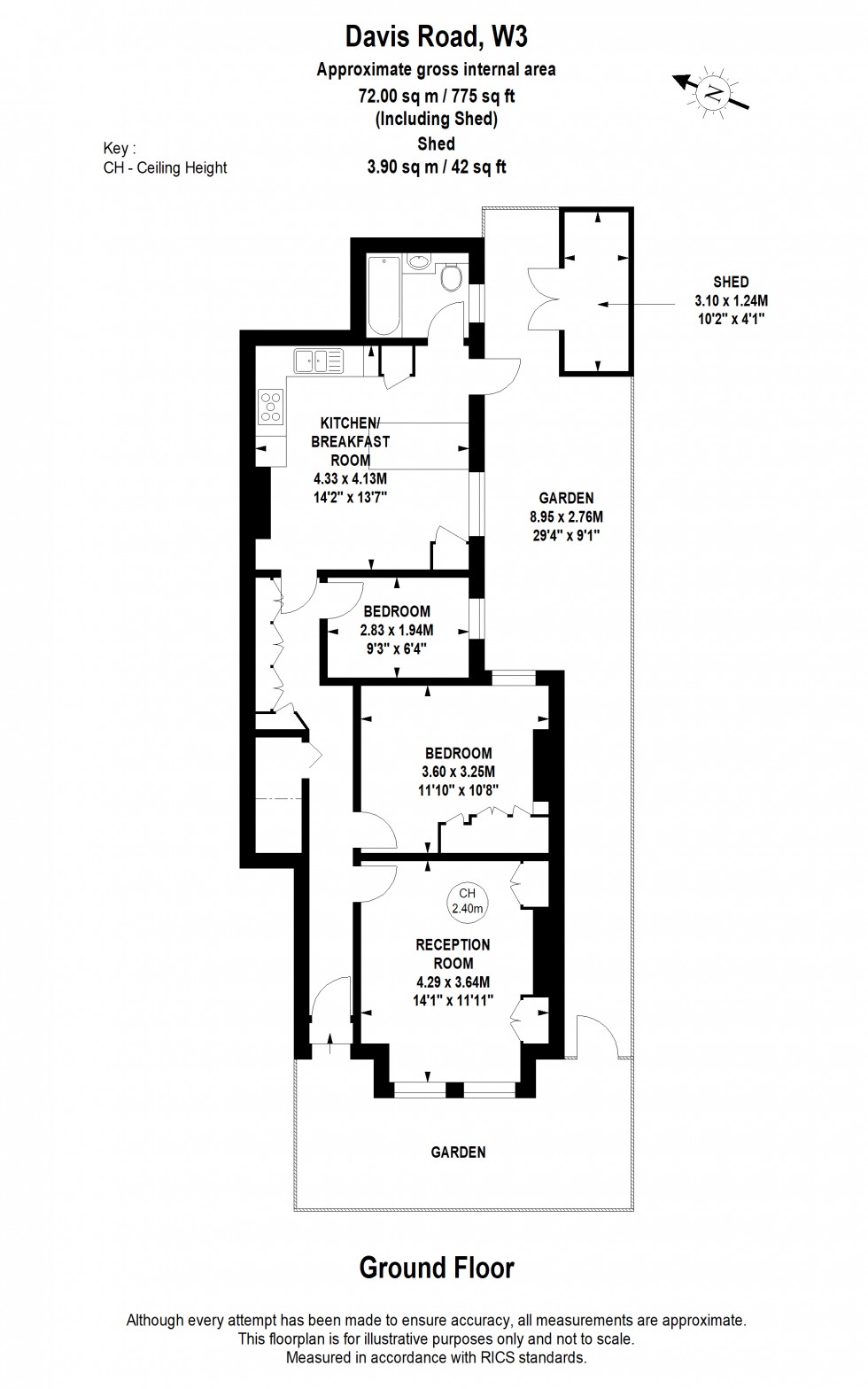
Set on a quiet residential street in the heart of W3, this charming two-bedroom ground-floor flat offers a superb mix of period character and practical living. Benefiting from its own private entrance, the property opens into a generous hallway with extensive built-in storage, ideal for coats, shoes and everyday essentials.

At the front of the home, the spacious reception room features fitted cupboards and a decorative fireplace, creating a warm, inviting living space. The main double bedroom is well-proportioned and includes built-in wardrobes, while the second bedroom offers flexibility as a guest room, nursery or home office.

The separate eat-in kitchen is bright and functional, fitted with integrated appliances and plenty of workspace. Just off the kitchen sits a modern bathroom with a shower-over-bath setup. At the rear, a large private garden provides excellent outdoor space for entertaining, with side access, perfect for bikes or avoiding traffic through the flat.

Davis Road is located in a popular residential pocket of Acton, W3, moments from the shops, cafés and restaurants along Askew Road and Uxbridge Road. The area benefits from several nearby stations including Stamford Brook and Turnham Green (District Line), Acton Central (Overground), and Acton Main Line (Elizabeth Line), providing quick access to Central London, Paddington, and Heathrow. Local bus routes also serve the surrounding areas of Chiswick, Shepherd’s Bush, and Ealing, ensuring easy connectivity.
  • 2 Bedrooms
  • 2 Reception Rooms
  • Ground Floor
  • Private Entrance
  • Private Garden
  • Professionally Managed
Floorplan for London
EPC Graph for London
Similar Property

Book a Valuation

Find out how much your property is worth