Hammersmith Grove, London

For Sale Offers In Excess Of, £750,000

2 2 2
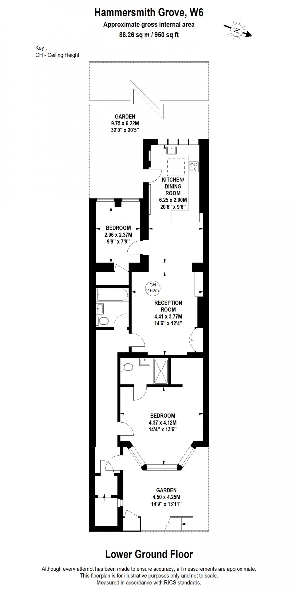
This stylish garden flat features two double bedrooms, each with walk-in storage, including a principal bedroom with a sleek en-suite. The recently renovated family bathroom boasts a shower-over-bath. The open-plan living space offers a cosy lounge, an eat-in kitchen area with a breakfast bar, and stunning wooden floors throughout. Outside, enjoy a wide private garden with low-maintenance artificial grass, perfect for relaxation and entertaining. The property was refurbished to a high standard 2021 and has had the benefit of a new boiler in 2025.

Situated in the heart of Brackenbury Village, Hammersmith Grove is a sought-after, tree-lined street offering a blend of charm and convenience. Just moments from vibrant cafes, restaurants, and boutique shops, it’s within walking distance of Hammersmith Station for excellent transport links. Close to green spaces and the Thames, this location perfectly balances city living with a relaxed neighborhood feel.
  • 2 Bedrooms
  • 2 Bathrooms
  • Double Reception Room
  • Recently Refurbished
  • Private Garden
  • Brackenbury Village
Floorplan for London
EPC Graph for London

Book a Valuation

Find out how much your property is worth