Rectory Road, London

Under Offer £7,500 PCM

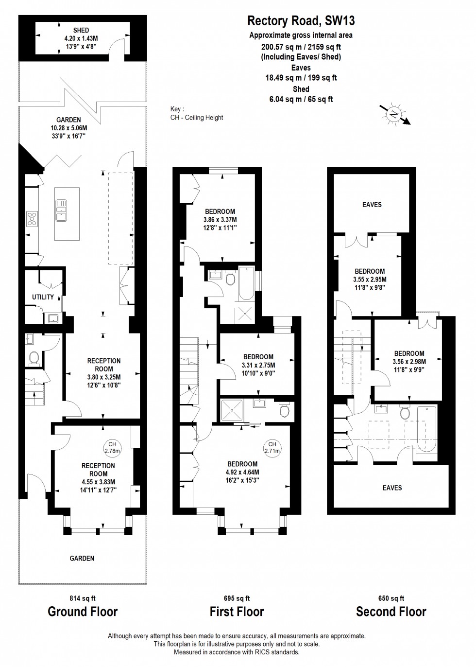
5 3 2
Nestled on the highly sought-after Rectory Road, this beautifully extended five-bedroom semi-detached home offers exceptional living space, modern design, and an ideal layout for family life, all within the heart of Barnes village.

Upon entering, you’re greeted by a spacious entrance hallway. To the front, a bright and elegant reception room provides a welcoming space for relaxing or entertaining. There is also a convenient downstairs WC.

To the rear, the property opens up into a stunning open-plan kitchen, dining, and living area, thoughtfully designed and finished to the highest standard. The bespoke kitchen features premium fittings and a large central island, complemented by a snug area, perfect for family gatherings or cosy evenings in. A separate utility room adds practical convenience.

Bi-folding glass doors open onto a low maintenance garden, complete with a useful storage shed and side access, ideal for families with bikes and outdoor equipment.

The first floor offers three generous double bedrooms, including a principal suite with a stylish ensuite shower room. The remaining two bedrooms share a well-appointed family bathroom.

On the top floor, two further double bedrooms provide flexible accommodation, ideal for guests or a home office. A sleek modern bathroom serves this floor, and the rear bedroom benefits from excellent eaves storage, offering ample room for family belongings.

The property further benefits from air conditioning in all five bedrooms, and the open plan kitchen living, including the snug.

With its combination of classic charm and contemporary design, this home perfectly balances elegant proportions with modern family living, all within a short stroll of Barnes’ excellent schools, shops, cafés, and transport links.
  • Semi-Detached
  • 5 Double Bedrooms
  • 3 Bathrooms + WC
  • Separate Utility Room
  • Private Garden with Side Access
  • Air Conditioning
Floorplan for London

Book a Valuation

Find out how much your property is worth