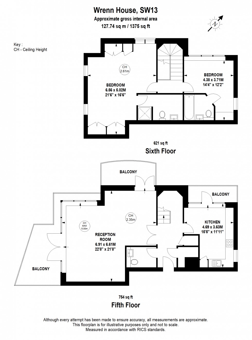
Experience luxury living in this stunning split-level, top-floor penthouse. Featuring 2 bedrooms, 2 bathrooms, a separate kitchen, and a bright living room with soaring double-height ceilings, this home offers both style and comfort. Enjoy a spacious private roof terrace with panoramic views, plus the convenience of off-street parking. Residents also benefit from exclusive access to an on-site swimming pool, gym, and concierge service.

Located in the prestigious Harrods Village, SW13, this exclusive riverside development offers a tranquil setting in the heart of Barnes. With its historic charm, landscaped grounds, and proximity to the Thames, it provides a perfect blend of luxury and convenience. Residents enjoy excellent local amenities, top-rated schools, and easy transport links to central London.
  • Penthouse
  • 2 Spacious Bedrooms
  • 2 Bathrooms
  • Roof Terrace
  • Separate Eat in Kitchen
  • Sought After Development
Floorplan for Brasenose Drive, London Floorplan for Brasenose Drive, London
EPC Graph for Brasenose Drive, London
Similar Property

Book a Valuation

Find out how much your property is worth